



Z641H氣動閘閥
Z641H氣動閘閥廣泛適用于石油、化工、水力、火力發電廠等油品、水蒸氣管路上作接通或截斷管路中介質的啟閉裝置。適用于公稱壓力PN1.6~16.0MPa,工作溫度≤-29℃~550℃的管路系統上,作為切斷或接通管路介質。適用介質為:水、油品、蒸氣、及酸、堿、氨、尿素、含硫天然氣等。
| 產品名稱: | 氣動閘閥 | 產品型號: | Z641H |
| 公稱通徑: | DN15~DN1000 | 結構形式: | 閘板式 |
| 公稱壓力: | 1.6Mpa~6.4Mpa | 連接方式: | 法蘭 |
| 適用溫度: | -20ºC~+150ºC~425ºC~550ºC | 驅動方式: | 氣動帶手動 |
| 閥體材質: | WCB、鑄鋼、碳鋼、不銹鋼、鉻鉬鋼 | 制造標準: | 國標GB、德國DIN、美國API、ANSI |
| 適用介質: | 水、油、蒸汽 | 生產廠家: | 上海凱利科閥門有限公司 |
| 閥體、閥蓋、閥板 | 鑄鋼 |
| 閥體及閘板的密封面 | 合金鋼 |
| 閥桿 | 不銹鋼 |
| 雙頭螺栓 | 35號鋼 |
| 氣缸 | 20號無縫鋼管 |
| 活塞 | 鑄鋁合金 |
| 手動螺母 | 青銅 |
| 密封圈 | 石棉橡膠板、纏繞式金屬石墨墊片 |
| 活塞環及軸環 | 耐油橡膠○型圈 |
| 填料函 | 石墨石棉繩 |
| 型號 | 公稱壓力PN(MPa) | 閥體試驗壓力 PN(MPa) | ||
| 強度試驗 | 密封試驗 | |||
| Z641H-10 | 1.6 | 2.4 | 1.6 | |
| Z641H-25 | 2.5 | 3.8 | 2.5 | |
| Z641H-40 | 4.0 | 6.0 | 4.0 | |
| Z641H-64 | 6.4 | 9.6 | 6.4 | |
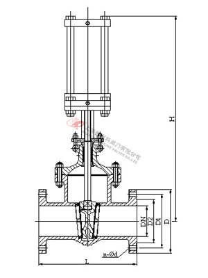
| 公稱通徑 DN | L | D | D1 | D2 | b | Z-Φd | H | H1 | D0 | WT(Kg) |
| 型號:Z641H-16C、Z641H-16P、Z641H-16R、Z641H-16I | ||||||||||
| 50 | 250 | 160 | 125 | 100 | 16 | 4-Φ18 | 950 | 570 | 180 | 36 |
| 65 | 270 | 180 | 145 | 120 | 18 | 4-Φ18 | 1050 | 596 | 180 | 53 |
| 80 | 280 | 195 | 160 | 135 | 20 | 8-Φ18 | 1080 | 635 | 200 | 72 |
| 100 | 300 | 215 | 180 | 155 | 20 | 8-Φ18 | 1145 | 645 | 250 | 90 |
| 125 | 325 | 245 | 210 | 185 | 22 | 8-Φ18 | 1210 | 685 | 250 | 120 |
| 150 | 350 | 280 | 240 | 210 | 24 | 8-Φ18 | 1300 | 720 | 320 | 132 |
| 200 | 400 | 335 | 295 | 265 | 26 | 12-Φ23 | 1660 | 940 | 400 | 258 |
| 250 | 450 | 405 | 355 | 320 | 30 | 12-Φ25 | 1790 | 1020 | 400 | 297 |
| 300 | 500 | 460 | 410 | 375 | 30 | 12-Φ25 | 1990 | 1150 | 450 | 420 |
| 350 | 550 | 520 | 470 | 435 | 34 | 16-Φ25 | 2090 | 1170 | 450 | 558 |
| 400 | 600 | 580 | 525 | 485 | 36 | 16-Φ30 | 2290 | 1325 | 500 | 840 |
| 450 | 650 | 640 | 585 | 545 | 40 | 20-Φ30 | 2485 | 1465 | 500 | 1110 |
| 500 | 700 | 705 | 650 | 608 | 44 | 20-Φ34 | 2640 | 1590 | 550 | 1380 |
| 600 | 800 | 840 | 770 | 718 | 48 | 20-Φ41 | 2940 | 1720 | 550 | 1620 |
| 700 | 900 | 910 | 840 | 788 | 50 | 24-Φ41 | 3450 | 1960 | 600 | 1966 |
| 800 | 1000 | 1020 | 950 | 898 | 52 | 24-Φ41 | 3650 | 2190 | 600 | 2282 |
| 900 | 1100 | 1120 | 1050 | 998 | 54 | 28-Φ41 | 3815 | 2400 | 800 | 2495 |
| 1000 | 1200 | 1255 | 1170 | 1110 | 56 | 28-Φ48 | 4000 | 2650 | 800 | 2760 |
|
公稱通徑 DN |
L | D | D1 | D2 | b | Z-Φd | H | H1 | D0 |
WT (Kg) |
| 型號:Z641H-25C、Z641H-25P、Z641H-25R、Z641H-25I | ||||||||||
| 50 | 250 | 160 | 125 | 100 | 20 | 4-Φ18 | 950 | 570 | 180 | 38 |
| 65 | 270 | 180 | 145 | 120 | 22 | 8-Φ18 | 1050 | 596 | 180 | 55 |
| 80 | 280 | 195 | 160 | 135 | 22 | 8-Φ18 | 1080 | 635 | 200 | 76 |
| 100 | 300 | 230 | 190 | 160 | 24 | 8-Φ23 | 1145 | 645 | 250 | 94 |
| 125 | 325 | 270 | 220 | 188 | 28 | 8-Φ25 | 1210 | 685 | 250 | 126 |
| 150 | 350 | 300 | 250 | 218 | 30 | 8-Φ25 | 1300 | 720 | 320 | 136 |
| 200 | 400 | 360 | 320 | 278 | 34 | 12-Φ25 | 1660 | 940 | 400 | 265 |
| 250 | 450 | 425 | 370 | 332 | 36 | 12-Φ30 | 1790 | 1020 | 400 | 300 |
| 300 | 500 | 485 | 430 | 390 | 50 | 16-Φ30 | 1990 | 1150 | 450 | 436 |
| 350 | 550 | 550 | 490 | 448 | 44 | 16-Φ34 | 2090 | 1170 | 450 | 580 |
| 400 | 600 | 610 | 550 | 505 | 48 | 16-Φ34 | 2290 | 1325 | 500 | 860 |
| 450 | 650 | 660 | 600 | 555 | 50 | 20-Φ34 | 2485 | 1465 | 500 | 1260 |
| 500 | 700 | 730 | 660 | 610 | 52 | 20-Φ41 | 2640 | 1590 | 550 | 1420 |
| 600 | 800 | 840 | 770 | 718 | 56 | 20-Φ41 | 3940 | 1720 | 550 | 1710 |
| 700 | 900 | 955 | 875 | 815 | 60 | 24-Φ48 | 3450 | 1960 | 600 | 2105 |
| 800 | 1000 | 1070 | 990 | 930 | 64 | 24-Φ48 | 3650 | 2190 | 600 | 2310 |
| 900 | 1100 | 1180 | 1090 | 1025 | 66 | 28-Φ54 | 3815 | 2400 | 800 | 2620 |
| 1000 | 1200 | 1305 | 1210 | 1140 | 68 | 28-Φ58 | 4000 | 2650 | 800 | 2960 |
|
公稱通徑 DN |
L | D | D1 | D2 | D6 | b | Z-Φd | H | H1 | D0 |
WT (Kg) |
| 型號:Z641H-40C、Z641H-40P、Z641H-40R、Z641H-40I | |||||||||||
| 50 | 250 | 160 | 125 | 100 | 88 | 20 | 4-Φ18 | 950 | 570 | 200 | 42 |
| 65 | 280 | 180 | 145 | 120 | 110 | 22 | 8-Φ18 | 1050 | 596 | 200 | 68 |
| 80 | 320 | 195 | 160 | 135 | 121 | 22 | 8-Φ18 | 1080 | 635 | 250 | 84 |
| 100 | 350 | 230 | 190 | 160 | 150 | 24 | 8-Φ23 | 1145 | 645 | 320 | 102 |
| 125 | 400 | 270 | 220 | 188 | 176 | 28 | 8-Φ25 | 1210 | 700 | 320 | 135 |
| 150 | 450 | 300 | 250 | 218 | 204 | 30 | 8-Φ25 | 1330 | 750 | 400 | 156 |
| 200 | 550 | 375 | 320 | 282 | 260 | 38 | 12-Φ30 | 1660 | 940 | 400 | 276 |
| 250 | 650 | 445 | 385 | 345 | 313 | 42 | 12-Φ34 | 1820 | 1050 | 450 | 306 |
| 300 | 750 | 510 | 450 | 408 | 364 | 46 | 16-Φ34 | 1990 | 1150 | 450 | 510 |
| 350 | 850 | 570 | 510 | 465 | 422 | 52 | 16-Φ34 | 2110 | 1190 | 500 | 720 |
| 400 | 950 | 655 | 585 | 535 | 474 | 58 | 16-Φ41 | 2335 | 1370 | 550 | 1050 |
| 450 | 1050 | 680 | 610 | 560 | 524 | 60 | 20-Φ41 | 2490 | 1510 | 550 | 1320 |
| 500 | 1150 | 755 | 6720 | 612 | 576 | 62 | 20-Φ48 | 2640 | 1590 | 550 | 1800 |
| 600 | 1350 | 890 | 795 | 730 | 678 | 62 | 20-Φ54 | 2940 | 1720 | 600 | 2160 |
聲明:【Z641H氣動閘閥】規格型號、結構尺寸由上海凱利科閥門有限公司提供,如何選擇適用的Z641H氣動閘閥產品,使之在工藝控制中安全可靠、經濟適用,可致電我司銷售部門及技術部門,我們將在最短的時間內為您解答! |